Réf : V10001202

Germ (65240) PEYRAGUDES - "L'écrin Majestueux" - T4 cabine duplex

Quand, au cœur de la station de Peyragudes, le luxe rencontre la montagne, cela donne naissance à « l’Écrin majestueux »

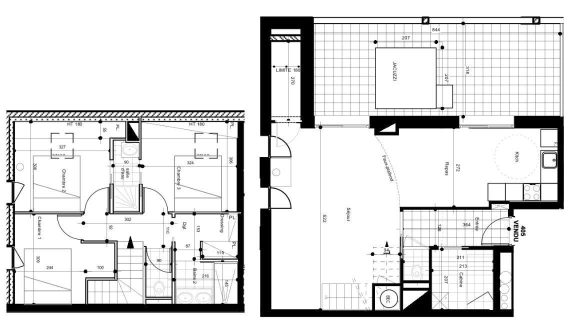
Ici, chaque détail de ce T4 duplex de 120 m² (90,75 m² loi Carrez) ont été soigneusement pensés pour vous rendre la vie plus confortable.

Dès l’entrée, l’atmosphère chaleureuse de la pièce de vie, inondée de lumière, vous accueille. Conviviale et élégante, elle s’articule autour d’une cheminée à foyer ouvert "Focus", idéale pour des soirées paisibles au coin du feu. La cuisine entièrement équipée invite aux plaisirs culinaires, tandis que le barbecue « Focus » sur la terrasse promet des moments conviviaux face aux sommets enneigés.

Côté nuit, ce havre de paix comprend trois belles chambres, un coin cabine, une salle d’eau, une salle de bain et deux WC, garantissant confort et intimité à chacun après une journée en altitude.

Pour parfaire votre séjour, plongez dans le jacuzzi et laissez-vous envoûter, depuis la terrasse, par le paysage naturel des montagnes qui change au gré des saisons. Cet espace de bien-être vous invite à une évasion totale, bercée par la majesté des sommets, où le temps semble suspendu.

Et parce qu’un séjour à la montagne rime avec confort, la résidence offre des prestations haut de gamme : • Deux casiers à skis équipés de chauffes-chaussures, • Deux places de parking et un espace de rangement privé en sous-sol

• Borne de recharge privée de 22kwa pour les véhicules électriques.

Un bien rare et précieux, conçu pour les amoureux de la montagne en quête d’authenticité et d’excellence. Laissez-vous séduire… avant qu’il ne soit trop tard !

Une exclusivité Pascale Pyrénées Immobilier

Ce bien est situé dans une copropriété formant 98 lots dont 38 à usage d'habitation. Le montant des charges s’élève à environ 1000 € par an
Les Honoraires d'agence sont inclus (30000 €) à la charge de l'acquéreur)

Pour tout renseignement contacter l'agence Pascale Pyrénées Immobilier - R.C.S Tarbes B 479 731 416 - Carte professionnelle N°CPI 6501 2016 000 007 74


Les informations sur les risques auxquels ce bien est exposé sont disponibles sur le site Géorisques

Les caractéristiques Du bien

Code postal 65240
Surface habitable (m²) 90,75 m²
Surface loi Carrez (m²) 90,75 m²
Nombre de chambre(s) 4
Nombre de pièces 5
Nombre de niveaux 2
Nb de salle d'eau 2
Interphone OUI
Visiophone OUI
Terrasse OUI
Nombre de garage 1
Année de construction 2013
Copropriété OUI
Lot n° 97
nombre de lots 38
statut du syndic pas de procédure en cours

Les infos Financières

Prix de vente honoraires TTC inclus 595 000 €
Prix de vente honoraires TTC exclus 564 000 €
Honoraires TTC à la charge acquéreur 5,5 %
Charges 85 €

Les infos Energetiques

DPE GES
DPE en cours

Nos outils

Imprimer

Localisation Du bien

  • Commerces et santé
  • Loisirs
  • Ecoles
  • Transports
  • Pratique
Intéressé(e) par Ce bien ?

* Champ obligatoire

contacter l'agence
Les informations recueillies sur ce formulaire sont enregistrées dans un fichier informatisé par La Boite Immo agissant comme Sous-traitant du traitement pour la gestion de la clientèle/prospects de l'Agence / du Réseau qui reste Responsable du Traitement de vos Données personnelles.
La base légale du traitement repose sur l’intérêt légitime de l'Agence / du Réseau.
Elles sont conservées jusqu'à demande de suppression et sont destinées à l'Agence / au Réseau.
Conformément à la loi « informatique et libertés », vous pouvez exercer votre droit d'accès aux données vous concernant et les faire rectifier en contactant l'Agence / le Réseau.
Si vous estimez, après avoir contacté l'Agence / le Réseau, que vos droits « Informatique et Libertés » ne sont pas respectés, vous pouvez adresser une réclamation à la CNIL.
Nous vous informons de l’existence de la liste d'opposition au démarchage téléphonique « Bloctel », sur laquelle vous pouvez vous inscrire ici : https://www.bloctel.gouv.fr 
Dans le cadre de la protection des Données personnelles, nous vous invitons à ne pas inscrire de Données sensibles dans le champ de saisie libre
Ce site est protégé par reCAPTCHA, les Politiques de Confidentialité et les Conditions d'Utilisation de Google s'appliquent.
Ces biens peuvent aussi vous intéresser
Vielle-Aure (65170)

VIELLE AURE - "La Ferme de Gayri" - maison et Gite en copropriété...

Exclusif
Prix en baisse
Saint-Lary-Soulan (65170)

EMPLACEMENT IDEAL - Saint-Lary-Soulan, La maison

Nous suivre sur