Réf : O10002715

Loudenvielle (65510) T2 NEUF avec Terrasse – Résidence de Standing à Loudenvielle (65510)

NOUVEAUTE A LOUDENVIELLE

T2 neuf à vendre à Loudenvielle, exposé Ouest au cœur d’une résidence de standing située à deux pas du lac, de Balnéa et de la télécabine Skyvall menant à Peyragudes. Idéal pour un pied-à-terre ou un investissement locatif en vallée du Louron.

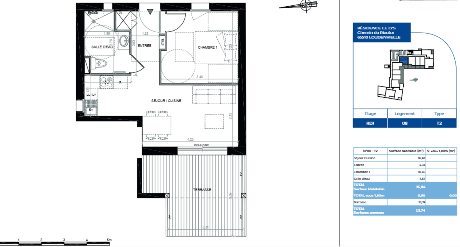
Il se compose d'une pièce de vie (séjour, cuisine) d'environ 16.48m², une chambre d'environ 10.45m², et d'une salle d'eau avec WC.

L’appartement dispose d’une terrasse privative, d’une cave (cellier), d’un casier à ski et d’une place de parking. La résidence est équipée d’un ascenseur et d’un local vélo sécurisé.

La résidence propose de très belles prestations :
  • Au coeur du village de Loudenvielle
  • 36 appartements du studio au T3 bis duplex
  • Peinture lisse murs et plafonds
  • Sol stratifié dans le séjour, la cuisine et les chambres
  • Carrelage dans les pièces humides
  • Volets roulants électriques
  • Cuisines équipée
  • Salles de bains équipées
  • Point lumineux extérieur
  • Robinet de puisage pour les jardins
  • Stationnements aériens et en sous sol
  • Local à ski et local à vélos sécurisé
Personnalisation possible sur demande

Livraison prévue en 2028. Frais de notaire offerts.

Une opportunité à saisir avec l’Agence Pascale Pyrénées à Loudenvielle.

Contactez-nous pour en savoir plus.


Les caractéristiques Du bien

Code postal 65510
Surface habitable (m²) 35,94 m²
Surface loi Carrez (m²) 35,94 m²
Nombre de chambre(s) 1
Nombre de pièces 2
Ascenseur OUI
Nb de salle de bains 1
Nb de salle d'eau 1
Type de cuisine Equipée
Mode de chauffage Pompe à chaleur
Type de chauffage Radiateur
Format de chauffage AUTRE
Balcon NON
Loggia NON
Terrasse OUI
Cave OUI
Nombre de parking 1
Exposition Ouest
Année de construction 2028
Copropriété OUI

Les infos Financières

Prix de vente honoraires TTC inclus 237 600 €

Les infos Energetiques

DPE GES
DPE ANCIENNE VERSION

Nos outils

Imprimer

Localisation Du bien

  • Commerces et santé
  • Loisirs
  • Ecoles
  • Transports
  • Pratique
Rez de chaussée
chambre 10.45 m²

chambre 10.45 m²

chambre 10.45 m²

cuisine 16.48 m²

salle de bain 4.67 m²

Intéressé(e) par Ce bien ?

* Champ obligatoire

contacter l'agence
Les informations recueillies sur ce formulaire sont enregistrées dans un fichier informatisé par La Boite Immo agissant comme Sous-traitant du traitement pour la gestion de la clientèle/prospects de l'Agence / du Réseau qui reste Responsable du Traitement de vos Données personnelles. La base légale du traitement repose sur l'intérêt légitime de l'Agence / du Réseau. Elles sont conservées jusqu'à demande de suppression et sont destinées à l'Agence / au Réseau. Conformément à la loi « informatique et libertés », vous disposez des droits d’accès, de rectification, d’effacement, d’opposition, de limitation et de portabilité de vos données. Vous pouvez retirer votre consentement à tout moment en contactant directement l’Agence / Le Réseau. Consultez le site https://cnil.fr/fr pour plus d’informations sur vos droits. Si vous estimez, après avoir contacté l'Agence / le Réseau, que vos droits « Informatique et Libertés » ne sont pas respectés, vous pouvez adresser une réclamation à la CNIL. Nous vous informons de l’existence de la liste d'opposition au démarchage téléphonique « Bloctel », sur laquelle vous pouvez vous inscrire ici : https://www.bloctel.gouv.fr Dans le cadre de la protection des Données personnelles, nous vous invitons à ne pas inscrire de Données sensibles dans le champ de saisie libre.
Ce site est protégé par reCAPTCHA, les Politiques de Confidentialité et les Conditions d'Utilisation de Google s'appliquent.
Ces biens peuvent aussi vous intéresser
Germ (65240)

À vendre – T2 cabine neuf à Peyragudes – 48,52 m² – Balcon – Vue...

Nous suivre sur